
3D CAD modeling
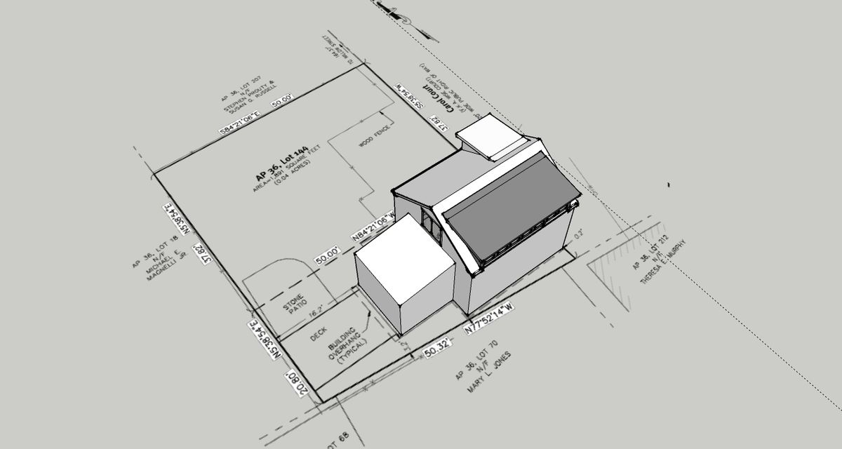
Designs are studied and refined using Sketchup CAD models- a fast, intuitive and accurate means of massing review, spatial investigation and detail development.
Designs are studied and refined using Sketchup CAD models- a fast, intuitive and accurate means of massing review, spatial investigation and detail development.